Intersecting Objects  |  Fall 2018

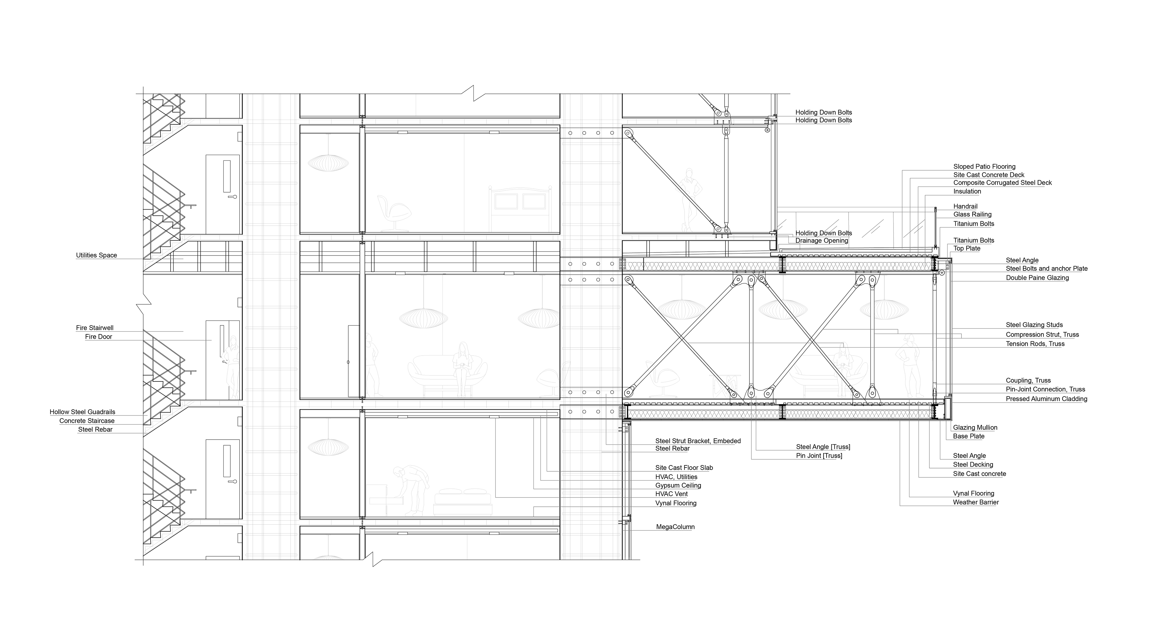
Wall Section Detail  |  The Independent, Austin  |  Spring 2021
Social Gradient  |  Floor plan, site plan, and section  |  Fall 2018

Social Gradient  |  Axon  |  Fall 2018

Social Gradient  |  Programmatic Objects Axon  |  Fall 2018
Back to Top